Zum Hauptinhalt springen
Menü
index.html
ORIGINAL DOBNER
Abgehängte Decken und vorgehängte Fassaden
  • ORIGINAL DOBNER METALLDECKEN
  • ÜBERSICHT DOBNER DECKENSYSTEME
  • PANEELDECKEN OFFENE FUGEN
  • PANEELDECKEN GESCHLOSSENE FUGEN
  • VERTIKAL-LAMELLENDECKEN
  • BALLWURFSICHERE STAHL-SPORT-PANEELDECKEN
  • SMART-BAFFLES 30-38
  • MW BAFFLES
  • METALLDECKEN-ZUBEHÖR
  • ANWENDUNGS-BEISPIELE
  • VORTEILE VON ORIGINAL DOBNER DECKEN
  • UNTERNEHMENS-INFORMATION
  • DOBNER REFERENZLISTE
  • KONTAKT
  • PANEELDECKEN BILDER
  • PANEELDECKEN SCHALLABSORPTION
  • PANEELDECKEN MONTAGE-HINWEISE
  • PANEELDECKEN AUSSCHREIBUNGS-TEXTE
  • LAMELLENDECKEN ZUBEHÖR
  • SMART-BAFFLES AUSSCHREIBUNGS-TEXT
  • FLUGHAFEN DECKEN
  • BAHNHOF- U. METRO-DECKEN
  • PARKHAUS DECKEN
  • TANKSTELLEN DECKEN
  • SPORTHALLEN DECKEN
  • SCHWIMMBAD DECKEN
  • FLUR UND KORRIDOR DECKEN
  • PRODUKTIONSHALLEN DECKEN
  • EURACON ALUMINIUM FASSADEN
  • EURACON FASSADEN BILDERGALERIE
  • EURACON FS-300 SYSTEMBESCHREIBUNG
  • EURACON FS-300 FARBEN
  • EURACON FS-300 MONTAGE
  • IMPRESSUM
  • DATENSCHUTZERKLÄRUNG
  • ALLGEMEINE GESCHÄFTSBEDINGUNGEN
  • PRÜFUNGEN UND ZERTIFIKATE

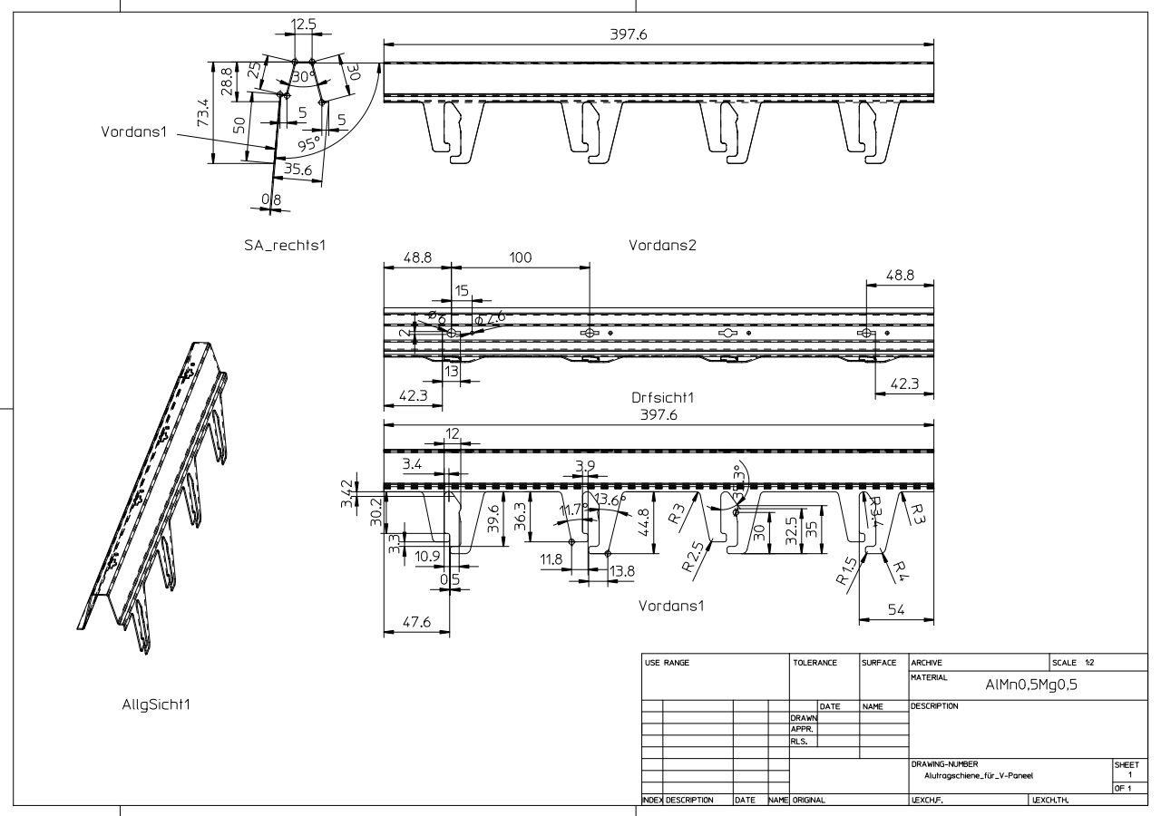
Tragschiene für die superleichten ORIGINAL DOBNER
Aluminium-Vertikal-Lamellendecken

Zurück zu den ORIGINAL DOBNER Aluminium-Vertikal-Lamellendecken  →→ 
Zurück zum ORIGINAL DOBNER Zubehör für abgehängte Metalldecken  →→ 

Zurück zur ORIGINAL DOBNER Startseite  →→

ORIGINAL DOBNER METALLDECKEN PANEELDECKEN MIT OFFENEN FUGEN PANEELDECKEN MIT GESCHLOSSENEN FUGEN ALUMINIUM-VERTIKAL-LAMELLENDECKEN BALLWURFSICHERE STAHL-SPORT-PANEELDECKEN KONTAKT ZU DOBNER GUTWERT
© DOBNER GUTWERT GMBH